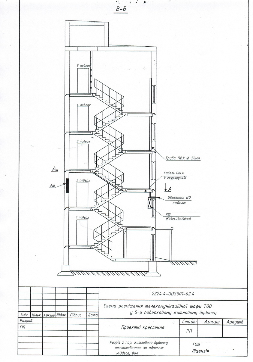
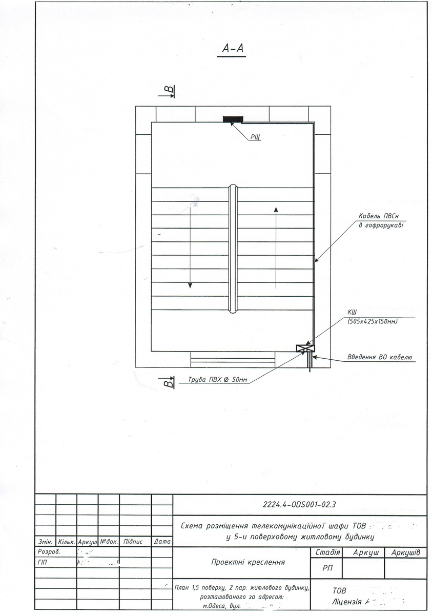
Приклад план-схеми

Увага операторам/провайдерам телекомунікаційних послуг/мереж!

Шановні колеги!

Нагадую Вам, про діючі правила по установці і експлуатації телекомунікаційних мереж на будівлях і спорудах в м.Одесі, прийнятих рішенням Одеської міської ради №3901- VI вiд 09.10.2013р.. Щоб уникнути непорозумінь і своєчасного отримання наряд-допусків на виконання робіт з будівництва, ремонту, впорядкування і модернізації абонентських кабельних ліній, прошу враховувати і виконувати пункти зазначених правил, в тому числі:

  • до заявки на видачу наряд-допуску на проведення робіт докладати проектну документацію (попередню схему мережі з зазначенням типу обладнання, місця і бажаного способу розміщення / прокладки телекомунікаційного обладнання);
  • планувати проведення робіт по бажаним адресами таким чином, щоб при отриманні нового наряд-допуску, виданий раніше наряд-допуск був виконаний і закритий.

Нові наряд-допуски по заявкам видаватися не будуть за наявності не закритих, раніше виданих наряд-допусків!

Прошу Вас відповідально поставитися до вимог «Правил» і чинного законодавства - інформувати підрядні організації.

З повагою! Директор Сабадирев А.І.

Приклад:

Firefox fix